"20 anni di esperienza nel settore immobiliare".

line
  • Via San Teobaldo 3,

  • 12051 Alba (CN)

line
Logo Delfinetti Immobiliare

Nuove costruzioni CANTIERE DGHOME

Residenziale

Immobile Descrizione

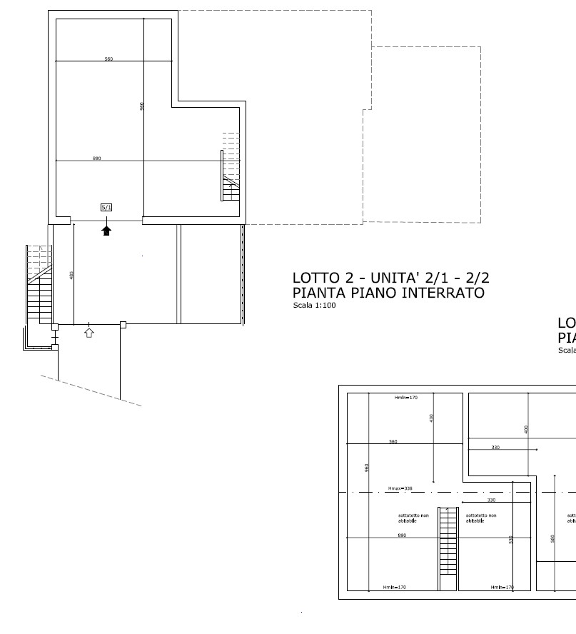
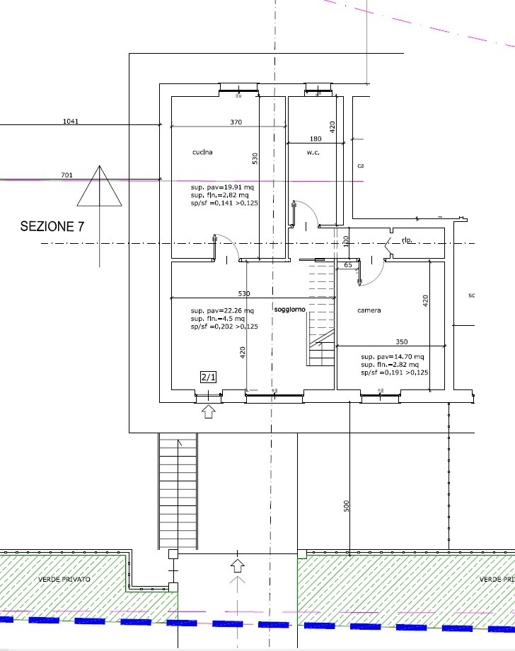
Alba a 3 km dal centro immersi nel verde vendesi ville di nuova costruzione libere sui tre lati o quattro lati di varie metrature e tipologie . Tutte le villette si sviluppano sul piano terra di 85 mq commerciali oltre a sottotetto agibile con velux e finestre con accesso da comoda scala interna. Ultima villetta disponibile con zona giorno due camere e bagno. Possibilità di terminare il sottotetto agibile con altezza minima di 1,60 mt dove poter ricavare volendo tre ulteriori camere e bagno. Garage interrato. Ottimo capitolato con WMC interna, riscaldamento a pavimento con caldaia in pompa di calore, serramenti in alluminio ad altissimo isolamento termico, portone sezionale e cancello automatizzati, predisposizione aria condizionata e antifurto, pannelli solari, giardino privato, chiusure elletriche con Glisser. Consegna 2025. Prezzi a partire da 320.000/00 con sottotetto al grezzo
Acquisto zero pensieri con preliminare trascritto, fidejussione a qualsiasi pagamento, postuma decennale al rogito. Si possono usufruire di vari bonus fiscali che se confermati sono al, 50 % valore costruttivo del garage.
La posizione è indicativa, vi aspettiamo in ufficio per farvi visionare i progetti e capitolato. ULTIMA VILLA DISPONIBILE SUI TRE LATI 

150 m2 2 Camere 2 Bagni

Dati Immobile

Cod.Riferimento VR320
Prezzo € 320000
Metratura 150 m2
Camere letto 2
Bagni 2
Classe energetica A4
Consumo energetico 24,86 kWh/m²
Stato Nuovo
Anno costruzione 2026
Box auto Doppio
Luogo Alba (CN)
Riscaldamento Autonomo
Lati liberi Tre

Dettagli Immobile

  • Allarme
  • Ascensore
  • Cancello elettrico
  • Cantina
  • Camino / caminetto
  • Mansarda
  • Taverna
  • Porta blindata
  • Balcone
  • Terrazzo
  • Videocitofono
  • Idromassaggio
  • Piscina

Le Piantine

Mappa

Immobile Video

Immobili struttura

Privacy

Per avere ulteriori informazioni completa il modulo online con i tuoi dati (che saranno utilizzati esclusivamente per soddisfare la tua richiesta, nel più assoluto rispetto della privacy).

Per maggiori informazioni clicca qui

Trattamento dei dati personali

Dimostra di non essere un robot, somma i due numeri:

8
+
91
=

Virtual Tour