"20 anni di esperienza nel settore immobiliare".

line
  • Via San Teobaldo 3,

  • 12051 Alba (CN)

line
Logo Delfinetti Immobiliare

Vendita Appartamento

Residenziale

Immobile Descrizione

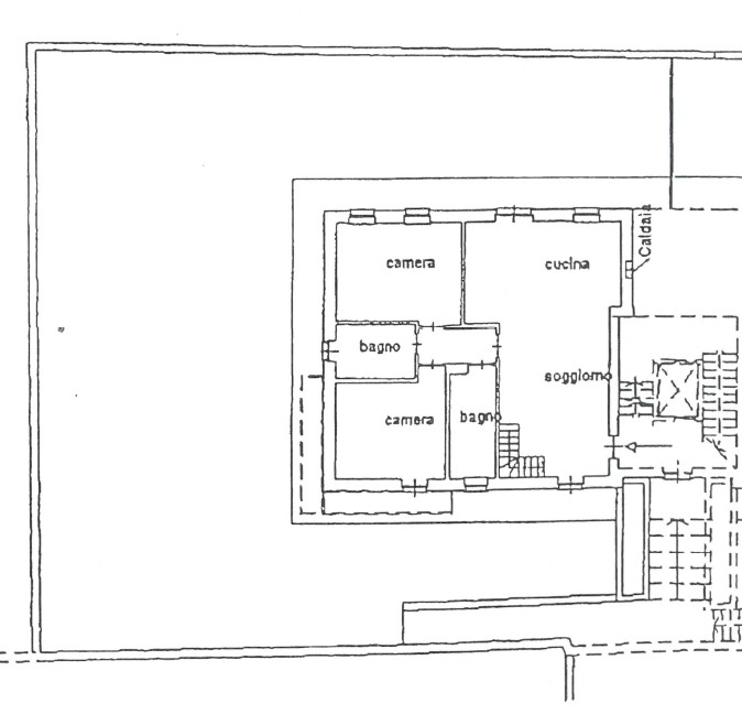
Diano D'alba paese vendesi bellissimo alloggio sito al piano terra in piccola palazzina pari al nuovo composto da: entrata su grande salone con cucina a vista e uscita sul giardino - terrazzo di 300 mq , due camere da letto, doppi servizi entrambi finestrati, scala interna a servire la tavernetta con finestre sui due lati . Completa la proprietà il garage molto ampio. Ottimi materiali costruttivi come : riscaldamento a pavimento ( presente anche nella tavernetta) pavimenti in parquet, doppi vetri a basso emissivo, antifurto, consumo acqua autonoma, zanzariere, ascensore e nessuna barriera architettonica. Ottima soluzione con sfogo esterno riservato. Poche spese condominiali.
Difficile da descrivere per gli ottimi spazi interni ed esterni e la fattura dell'immobile. ASSOLUTAMENTE DA VEDERE
RICHIESTA 285.000

120 m2 2 Camere 2 Bagni

Dati Immobile

Cod.Riferimento DN295
Prezzo € 285000
Metratura 120 m2
Camere letto 2
Bagni 2
Classe energetica C:82 kWh/m² - 143 kWh/m²
Consumo energetico 137,56 kWh/m²
Stato Ottimo
Anno costruzione 0
Box auto Doppio
Luogo Alba (CN)
Riscaldamento Autonomo
Lati liberi Tre

Dettagli Immobile

  • Allarme
  • Ascensore
  • Ascensore con servoscala
  • Cancello elettrico
  • Cantina
  • Camino / caminetto
  • Mansarda
  • Taverna
  • Porta blindata
  • Balcone
  • Terrazzo
  • Videocitofono
  • Idromassaggio
  • Piscina

Le Piantine

Mappa

Immobile Video

Privacy

Per avere ulteriori informazioni completa il modulo online con i tuoi dati (che saranno utilizzati esclusivamente per soddisfare la tua richiesta, nel più assoluto rispetto della privacy).

Per maggiori informazioni clicca qui

Trattamento dei dati personali

Dimostra di non essere un robot, somma i due numeri:

9
+
49
=

Virtual Tour