"20 anni di esperienza nel settore immobiliare".

line
  • Via San Teobaldo 3,

  • 12051 Alba (CN)

line
Logo Delfinetti Immobiliare

Vendita Appartamento

Residenziale

Immobile Descrizione

Alba, in esclusiva vendesi zona Moretta, su strada Profonda, in piccola palazzina signorile di poche unità ( solamente quattro ) di nuova e prossima costruzione, alloggio bilocale al piano primo libero cu tre lati con tre balconi uno per lato. L'immobile rispecchia tutte le caratteristiche di nuova costruzione in linea con il risparmio energetico ( classe A/2 A/3) riscaldamento a pavimento con pompa di calore, fotovoltaico, grandi vetrate in triplo vetro etc. . Completa la proprietà un posto auto scoperto esclusivo nel cortile e la cantina. Ulteriori informazioni in ufficio.
Prezzo: 195.000 euro chiavi in mano

55 m2 1 Camere 1 Bagni

Dati Immobile

Cod.Riferimento Bilo Profonda
Prezzo € 195000
Metratura 55 m2
Camere letto 1
Bagni 1
Classe energetica A3
Consumo energetico 32,56 kWh/m²
Stato Nuovo
Anno costruzione 2025
Box auto Posto auto scoperto
Luogo Alba (CN)
Riscaldamento Autonomo
Lati liberi -

Dettagli Immobile

  • Allarme
  • Ascensore
  • Ascensore con servoscala
  • Cancello elettrico
  • Cantina
  • Camino / caminetto
  • Mansarda
  • Taverna
  • Porta blindata
  • Balcone
  • Terrazzo
  • Videocitofono
  • Idromassaggio
  • Piscina

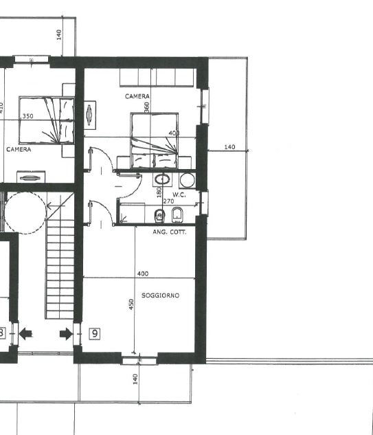
Le Piantine

Mappa

Immobile Video

Privacy

Per avere ulteriori informazioni completa il modulo online con i tuoi dati (che saranno utilizzati esclusivamente per soddisfare la tua richiesta, nel più assoluto rispetto della privacy).

Per maggiori informazioni clicca qui

Trattamento dei dati personali

Dimostra di non essere un robot, somma i due numeri:

8
+
99
=

Virtual Tour